Top.Mail.Ru

16-я Парковая ул., д. 49, к. 1

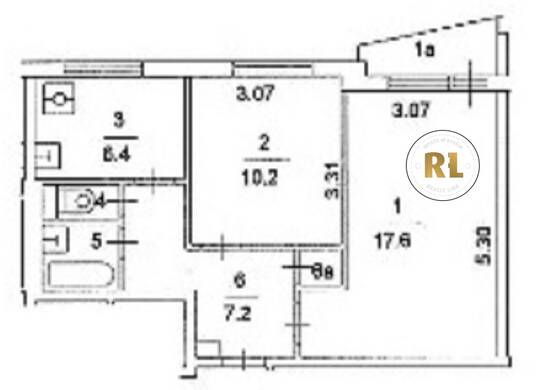
База каталог, Кол-во подъездов: 5, Отсутствует, II-57, Москва, Северное Измайлово, Площадь парковки: 0, Пассажирский лифт: 5, От метро: 2160, Восточный, нет, Наименьшее кол-во этажей: 1, Наибольшее кол-во этажей: 9, Щёлковская, Кол-во помещений: 179, Кол-во нежилых помещений: 0, Год ввода в эксплуатацию: 1967, 2-комн, Кол-во жилых помещений: 179, Не присвоен, дом 49, корпус 1, нет, да, да, нет, нет, нет, Отсутствует, Грузовых лифтов: 0, Год постройки: 1967, 16-я Парковая улица, 37.828452, 55.809226
Свяжитесь со мной на счет цены
10 дн.
D55S809226L37S828452D

На карте


Условия сделки

Источник


Старт продаж

Возможно заинтересует