Top.Mail.Ru

проезд Соломенной Сторожки, д. 12А

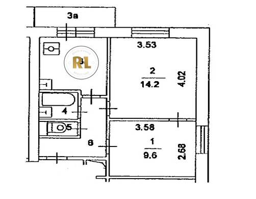
База каталог, Кол-во подъездов: 1, II-18, Москва, Тимирязевский, Площадь парковки: 0, Пассажирский лифт: 2, От метро: 1510, Северный, нет, Наименьшее кол-во этажей: 12, Наибольшее кол-во этажей: 12, Дмитровская, Кол-во помещений: 84, Кол-во нежилых помещений: 0, Год ввода в эксплуатацию: 1969, 2-комн, Кол-во жилых помещений: 84, Не присвоен, дом 12А, нет, да, да, да, да, нет, Грузовых лифтов: 0, Год постройки: 1969, проезд Соломенной Сторожки, 37.562182, 55.809408
Свяжитесь со мной на счет цены
10 дн.
D55S809408L37S562182D

На карте


Условия сделки

Источник


Старт продаж

Возможно заинтересует