Top.Mail.Ru

Щелковское шоссе, д. 78

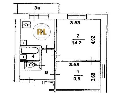
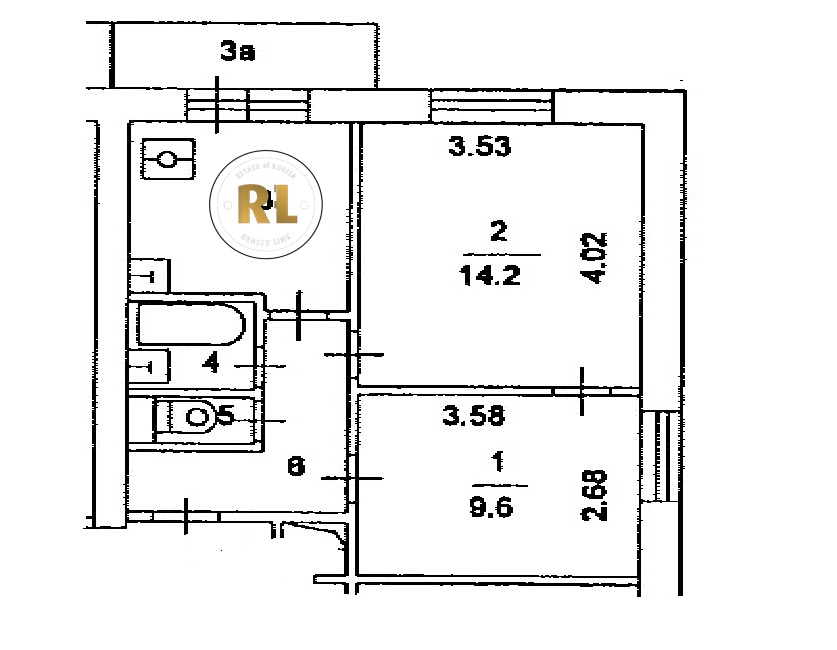
База каталог, Кол-во подъездов: 1, II-18, Москва, Северное Измайлово, Площадь парковки: 0, Пассажирский лифт: 2, От метро: 810, Восточный, нет, Наименьшее кол-во этажей: 12, Наибольшее кол-во этажей: 12, Щёлковская, Кол-во помещений: 95, Кол-во нежилых помещений: 3, Год ввода в эксплуатацию: 1966, 2-комн, Кол-во жилых помещений: 92, Не присвоен, дом 78, нет, да, да, да, да, да, Грузовых лифтов: 0, Год постройки: 1966, Щелковское шоссе, 37.812112, 55.810243
Свяжитесь со мной на счет цены
10 дн.
D55S810243L37S812112D

На карте


Условия сделки

Источник


Старт продаж

Возможно заинтересует