Top.Mail.Ru

улица Вучетича, д. 13

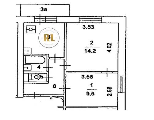
База каталог, Кол-во подъездов: 1, II-18, Москва, Тимирязевский, Площадь парковки: 0, Пассажирский лифт: 2, От метро: 1630, Северный, нет, Наименьшее кол-во этажей: 12, Наибольшее кол-во этажей: 12, Тимирязевская, Кол-во помещений: 93, Кол-во нежилых помещений: 1, Год ввода в эксплуатацию: 1966, 2-комн, Кол-во жилых помещений: 92, E, дом 13, нет, да, да, да, нет, нет, Грузовых лифтов: 0, Год постройки: 1966, улица Вучетича, 37.557906, 55.810375
Свяжитесь со мной на счет цены
10 дн.
D55S810375L37S557906D

На карте


Условия сделки

Источник


Старт продаж

Возможно заинтересует