Top.Mail.Ru

Щелковское шоссе, д. 79, к. 1

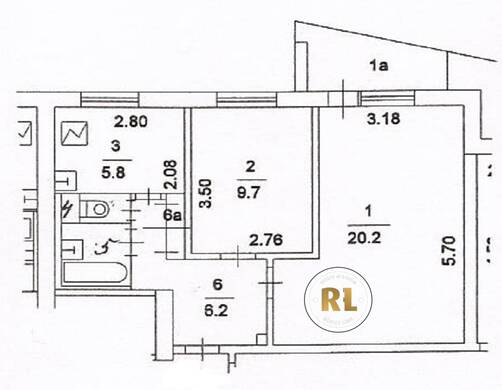
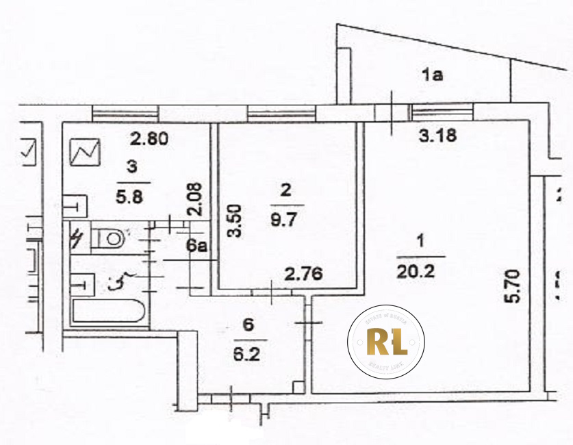
База каталог, Кол-во подъездов: 14, I-515, Москва, Гольяново, Площадь парковки: 0, Пассажирский лифт: 14, От метро: 740, Восточный, нет, Наименьшее кол-во этажей: 0, Наибольшее кол-во этажей: 9, Щёлковская, Кол-во помещений: 490, Кол-во нежилых помещений: 1, Год ввода в эксплуатацию: 1971, 2-комн, Кол-во жилых помещений: 489, дом 79, корпус 1, нет, да, да, да, да, да, Имеется, Грузовых лифтов: 0, Год постройки: 1971, Щелковское шоссе, 37.808689, 55.811138
Свяжитесь со мной на счет цены
10 дн.
D55S811138L37S808689D

На карте


Условия сделки

Источник


Старт продаж

Возможно заинтересует