Top.Mail.Ru

Щелковское шоссе, д. 92, к. 2

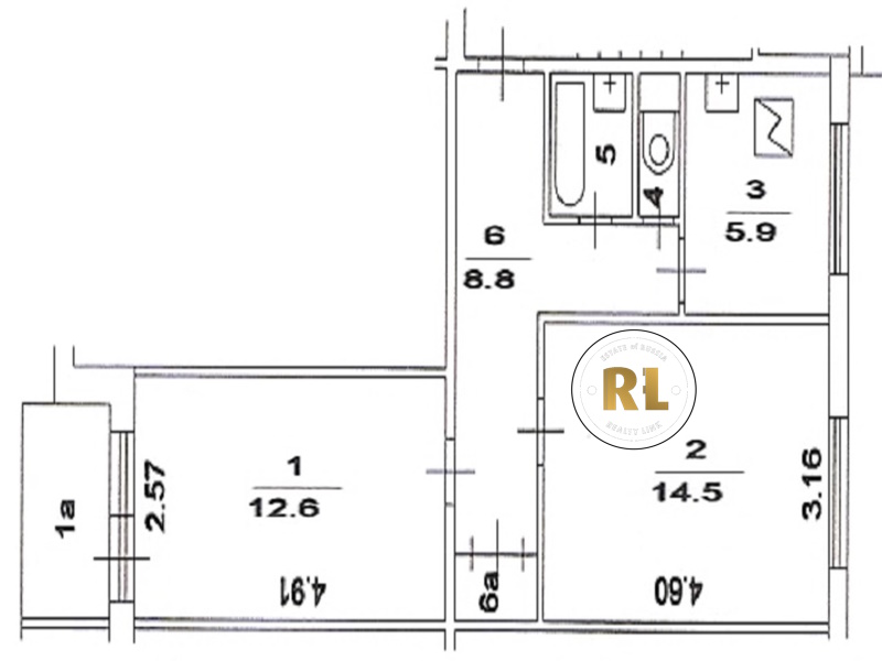
База каталог, Кол-во подъездов: 4, Отсутствует, II-49-04/Ю, Москва, Северное Измайлово, Пассажирский лифт: 4, От метро: 1650, Восточный, да, Наименьшее кол-во этажей: 9, Наибольшее кол-во этажей: 9, Щёлковская, Кол-во помещений: 144, Кол-во нежилых помещений: 1, Год ввода в эксплуатацию: 1967, 2-комн, Кол-во жилых помещений: 143, дом 92, корпус 2, нет, да, да, да, нет, нет, Имеется, Грузовых лифтов: 0, Год постройки: 1967, Щелковское шоссе, 37.824302, 55.811310
Свяжитесь со мной на счет цены
10 дн.
D55S811310L37S824302D

На карте


Условия сделки

Источник


Старт продаж

Возможно заинтересует