Top.Mail.Ru

Краснобогатырская ул., д. 23

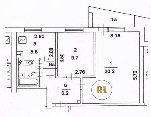
База каталог, Кол-во подъездов: 4, I-515, Москва, Богородское, Площадь парковки: 0, Пассажирский лифт: 4, От метро: 2070, Восточный, нет, Наименьшее кол-во этажей: 0, Наибольшее кол-во этажей: 9, Преображенская площадь, Кол-во помещений: 144, Кол-во нежилых помещений: 0, Год ввода в эксплуатацию: 1975, 2-комн, Кол-во жилых помещений: 144, С, дом 23, нет, да, да, да, нет, нет, Имеется, Грузовых лифтов: 0, Год постройки: 1975, Краснобогатырская улица, 37.702796, 55.811629
Свяжитесь со мной на счет цены
10 дн.
D55S811629L37S702796D

На карте


Условия сделки

Источник


Старт продаж

Возможно заинтересует