Top.Mail.Ru

Уральская ул., д. 4

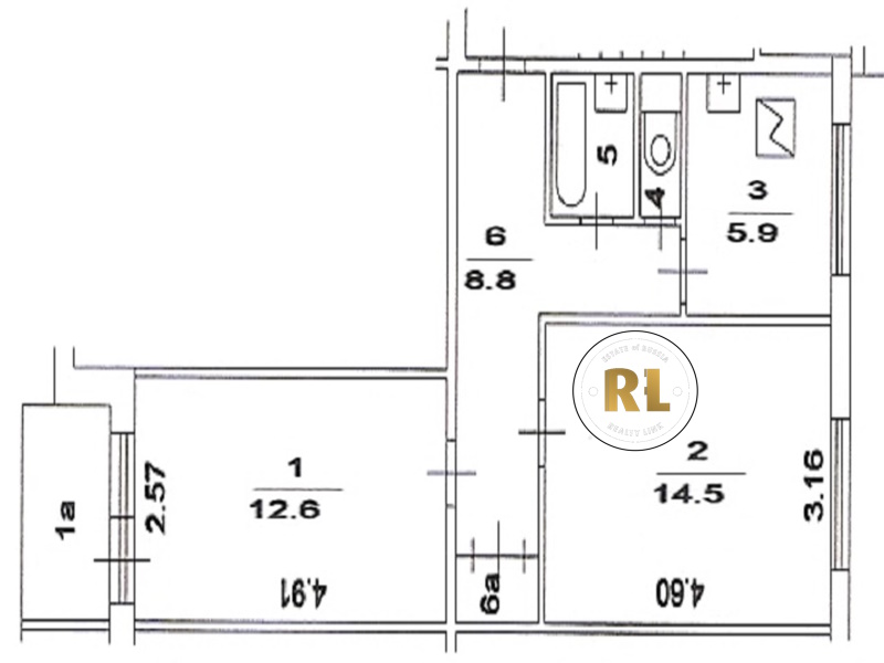
База каталог, Кол-во подъездов: 10, II-49Д, Москва, Гольяново, Площадь парковки: 0, Пассажирский лифт: 10, От метро: 330, Восточный, нет, Наименьшее кол-во этажей: 0, Наибольшее кол-во этажей: 9, Щёлковская, Кол-во помещений: 356, Кол-во нежилых помещений: 1, Год ввода в эксплуатацию: 1968, 2-комн, Кол-во жилых помещений: 355, дом 4, да, да, да, да, да, да, Имеется, Грузовых лифтов: 0, Год постройки: 1968, Уральская улица, 37.800990, 55.811756
Свяжитесь со мной на счет цены
10 дн.
D55S811756L37S800990D

На карте


Условия сделки

Источник


Старт продаж

Возможно заинтересует