Top.Mail.Ru

3-я Гражданская ул., д. 6

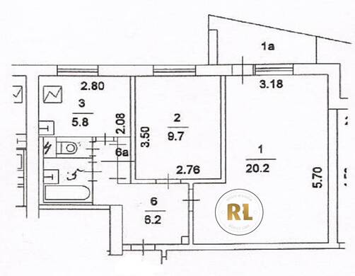
База каталог, Кол-во подъездов: 6, I-515, Москва, Богородское, Площадь парковки: 0, Пассажирский лифт: 6, От метро: 2040, Восточный, нет, Наименьшее кол-во этажей: 0, Наибольшее кол-во этажей: 9, Бульвар Рокоссовского, Кол-во помещений: 217, Кол-во нежилых помещений: 1, Год ввода в эксплуатацию: 1968, 2-комн, Кол-во жилых помещений: 216, В, дом 6, нет, да, да, да, нет, нет, Грузовых лифтов: 0, Год постройки: 1968, 3-я Гражданская улица, 37.706506, 55.811836
Свяжитесь со мной на счет цены
10 дн.
D55S811836L37S706506D

На карте


Условия сделки

Источник


Старт продаж

Возможно заинтересует