Top.Mail.Ru

Щелковское шоссе, д. 77, к. 1

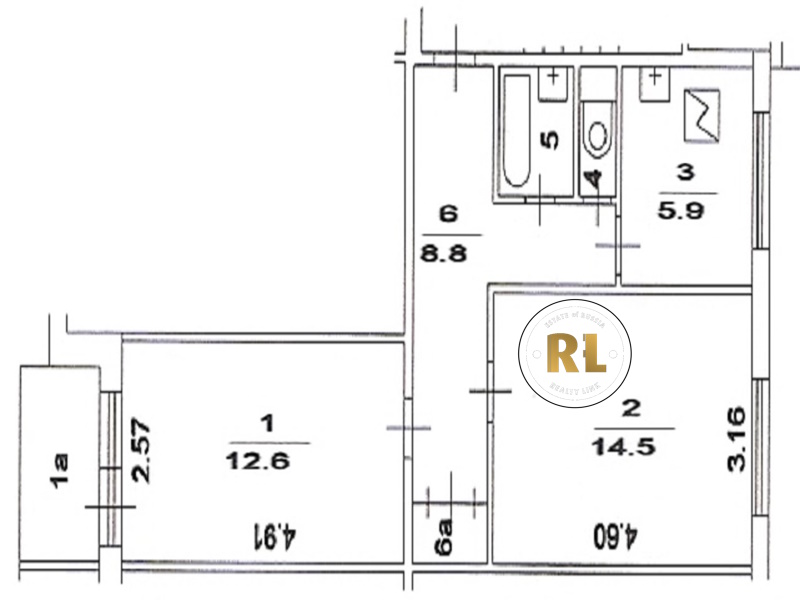
База каталог, Кол-во помещений: 285, II-49-08/Ю, Москва, Гольяново, Площадь парковки: 0, Пассажирский лифт: 8, От метро: 590, Восточный, нет, Наименьшее кол-во этажей: 0, Наибольшее кол-во этажей: 9, Щёлковская, Кол-во подъездов: 8, Год ввода в эксплуатацию: 1968, Кол-во нежилых помещений: 1, 2-комн, Кол-во жилых помещений: 284, дом 77, корпус 1, да, да, да, да, да, да, Грузовых лифтов: 0, Год постройки: 1968, Щелковское шоссе, 37.804718, 55.812251
Свяжитесь со мной на счет цены
10 дн.
D55S812251L37S804718D

На карте


Условия сделки

Источник


Старт продаж

Возможно заинтересует