Top.Mail.Ru

3-я Гражданская ул., д. 4

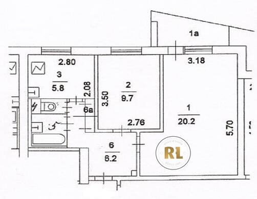
База каталог, Кол-во подъездов: 6, I-515, Москва, Богородское, Площадь парковки: 0, Пассажирский лифт: 6, От метро: 2170, Восточный, нет, Наименьшее кол-во этажей: 0, Наибольшее кол-во этажей: 9, Бульвар Рокоссовского, Кол-во помещений: 216, Кол-во нежилых помещений: 0, Год ввода в эксплуатацию: 1969, 2-комн, Кол-во жилых помещений: 216, В, дом 4, нет, да, да, нет, нет, нет, Грузовых лифтов: 0, Год постройки: 1969, 3-я Гражданская улица, 37.704808, 55.812575
Свяжитесь со мной на счет цены
10 дн.
D55S812575L37S704808D

На карте


Условия сделки

Источник


Старт продаж

Возможно заинтересует