Top.Mail.Ru

улица Руставели, д. 10, к. 4

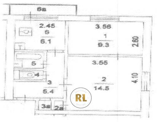
База каталог, Кол-во подъездов: 1, Отсутствует, II-18, Москва, Бутырский, Площадь парковки: 0, Пассажирский лифт: 2, От метро: 590, Северо-Восточный, нет, Наименьшее кол-во этажей: 9, Наибольшее кол-во этажей: 9, Бутырская, Кол-во помещений: 63, Кол-во нежилых помещений: 0, Год ввода в эксплуатацию: 1970, 2-комн, Кол-во жилых помещений: 63, E, дом 10, корпус 4, да, да, да, да, да, да, Отсутствует, Грузовых лифтов: 0, Год постройки: 1970, улица Руставели, 37.592635, 55.812626
Свяжитесь со мной на счет цены
10 дн.
D55S812626L37S592635D

На карте


Условия сделки

Источник


Старт продаж

Возможно заинтересует