Top.Mail.Ru

улица Исаковского, д. 14, к. 2

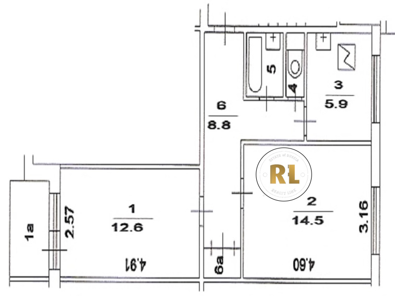
База каталог, Кол-во подъездов: 4, Имеется, II-49Д, Москва, Строгино, Площадь парковки: 0, Пассажирский лифт: 4, От метро: 1360, Северо-Западный, нет, Наименьшее кол-во этажей: 9, Наибольшее кол-во этажей: 9, Строгино, Кол-во помещений: 144, Кол-во нежилых помещений: 0, Год ввода в эксплуатацию: 1979, 2-комн, Кол-во жилых помещений: 144, Не присвоен, дом 14, корпус 2, нет, да, да, да, да, нет, Отсутствует, Грузовых лифтов: 0, Год постройки: 1979, улица Исаковского, 37.407618, 55.813314
Свяжитесь со мной на счет цены
10 дн.
D55S813314L37S407618D

На карте


Условия сделки

Источник


Старт продаж

Возможно заинтересует