Top.Mail.Ru

Игральная ул., д. 6, к. 1

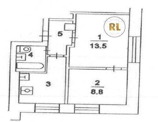
База каталог, Кол-во подъездов: 3, II-29, Москва, Богородское, Пассажирский лифт: 3, От метро: 1540, Восточный, да, Наименьшее кол-во этажей: 0, Наибольшее кол-во этажей: 9, Бульвар Рокоссовского, Кол-во помещений: 109, Кол-во нежилых помещений: 1, Год ввода в эксплуатацию: 1965, 2-комн, Кол-во жилых помещений: 108, дом 6, корпус 1, нет, да, да, да, да, нет, Грузовых лифтов: 0, Год постройки: 1965, Игральная улица, 37.712515, 55.813551
Свяжитесь со мной на счет цены
10 дн.
D55S813551L37S712515D

На карте


Условия сделки

Источник


Старт продаж

Возможно заинтересует