Top.Mail.Ru

Новосибирская ул., д. 3

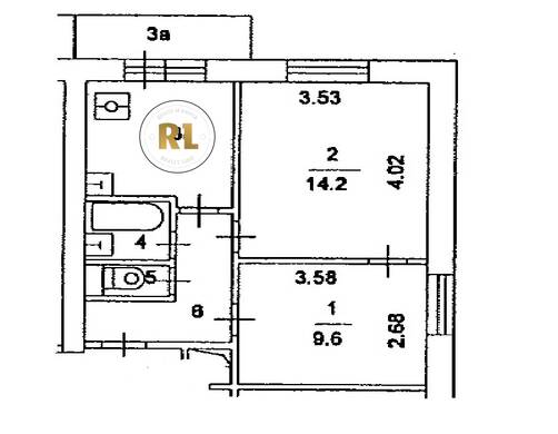
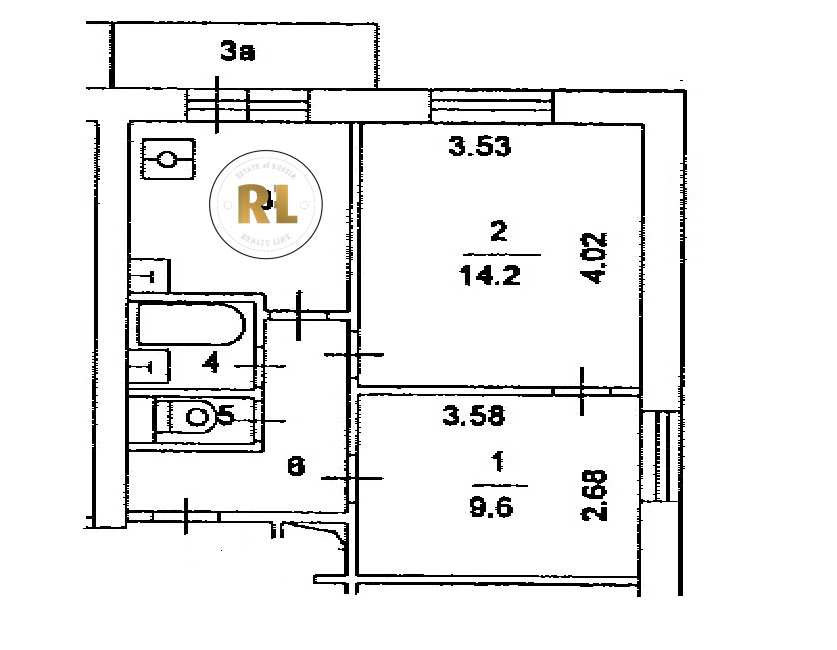
База каталог, Кол-во помещений: 82, II-18, Москва, Гольяново, Площадь парковки: 0, Пассажирский лифт: 2, От метро: 1590, Восточный, нет, Наименьшее кол-во этажей: 12, Наибольшее кол-во этажей: 12, Щёлковская, Кол-во подъездов: 1, Год ввода в эксплуатацию: 1969, Кол-во нежилых помещений: 1, 2-комн, Кол-во жилых помещений: 81, дом 3, нет, да, да, да, да, нет, Грузовых лифтов: 0, Год постройки: 1969, Новосибирская улица, 37.819594, 55.813946
Свяжитесь со мной на счет цены
10 дн.
D55S813946L37S819594D

На карте


Условия сделки

Источник


Старт продаж

Возможно заинтересует