Top.Mail.Ru

Врачебный проезд, д. 10, к. 2

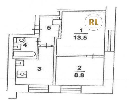
База каталог, Кол-во подъездов: 5, Имеется, II-29, Москва, Покровское-Стрешнево, Площадь парковки: 0, Пассажирский лифт: 5, От метро: 770, Северо-Западный, нет, Наименьшее кол-во этажей: 1, Наибольшее кол-во этажей: 9, Щукинская, Кол-во помещений: 180, Кол-во нежилых помещений: 0, Год ввода в эксплуатацию: 1967, 2-комн, Кол-во жилых помещений: 180, Не присвоен, дом 10, корпус 2, нет, да, да, да, да, да, Имеется, Грузовых лифтов: 0, Год постройки: 1967, Врачебный проезд, 37.460816, 55.814447
Свяжитесь со мной на счет цены
10 дн.
D55S814447L37S460816D

На карте


Условия сделки

Источник


Старт продаж

Возможно заинтересует