Top.Mail.Ru

Чусовская ул., д. 11, к. 1

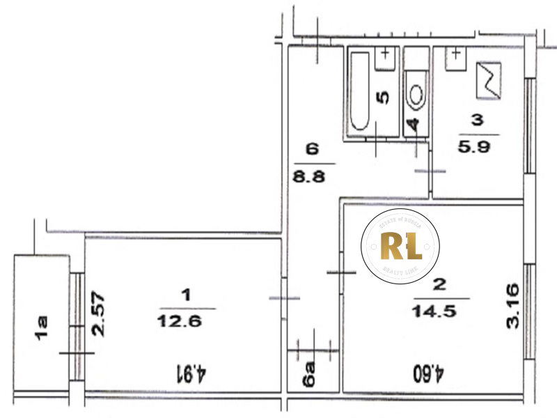
База каталог, Кол-во подъездов: 8, II-49Д, Москва, Гольяново, Площадь парковки: 0, Пассажирский лифт: 8, От метро: 1270, Восточный, нет, Наименьшее кол-во этажей: 0, Наибольшее кол-во этажей: 9, Щёлковская, Кол-во помещений: 284, Кол-во нежилых помещений: 1, Год ввода в эксплуатацию: 1967, 2-комн, Кол-во жилых помещений: 283, дом 11, корпус 1, нет, да, да, да, да, нет, Имеется, Грузовых лифтов: 0, Год постройки: 1967, Чусовская улица, 37.811546, 55.814603
Свяжитесь со мной на счет цены
10 дн.
D55S814603L37S811546D

На карте


Условия сделки

Источник


Старт продаж

Возможно заинтересует