Top.Mail.Ru

бульвар Маршала Рокоссовского, д. 29/13

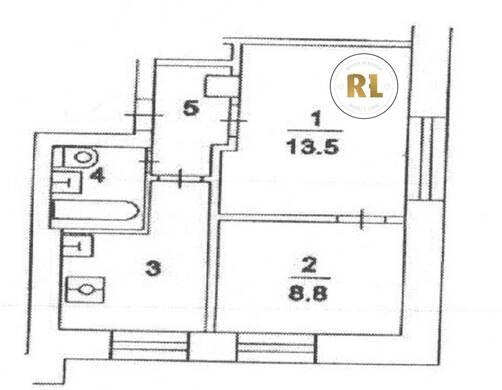
База каталог, Кол-во подъездов: 3, Имеется, II-29-41/37, Москва, Богородское, Пассажирский лифт: 3, От метро: 1170, Восточный, да, Наименьшее кол-во этажей: 8, Наибольшее кол-во этажей: 8, Бульвар Рокоссовского, Кол-во помещений: 97, Кол-во нежилых помещений: 1, Год ввода в эксплуатацию: 1964, 2-комн, Кол-во жилых помещений: 96, дом 29/13, нет, да, да, да, да, нет, Имеется, Грузовых лифтов: 0, Год постройки: 1964, бульвар Маршала Рокоссовского, 37.717052, 55.815033
Свяжитесь со мной на счет цены
10 дн.
D55S815033L37S717052D

На карте


Условия сделки

Источник


Старт продаж

Возможно заинтересует