Top.Mail.Ru

Звездный бульвар, д. 22, к. 1

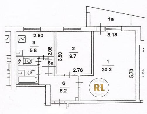
База каталог, Кол-во подъездов: 1, Отсутствует, I-515, Москва, Останкинский, Площадь парковки: 0, Пассажирский лифт: 1, От метро: 950, Северо-Восточный, нет, Наименьшее кол-во этажей: 8, Наибольшее кол-во этажей: 8, ВДНХ, Кол-во помещений: 65, Кол-во нежилых помещений: 1, Год ввода в эксплуатацию: 1960, 2-комн, Кол-во жилых помещений: 64, Не присвоен, дом 22, корпус 1, нет, да, да, да, да, да, Имеется, Грузовых лифтов: 0, Год постройки: 1960, Звездный бульвар, 37.628882, 55.815337
Свяжитесь со мной на счет цены
10 дн.
D55S815337L37S628882D

На карте


Условия сделки

Источник


Старт продаж

Возможно заинтересует