Top.Mail.Ru

улица Константинова, д. 14, к. 2

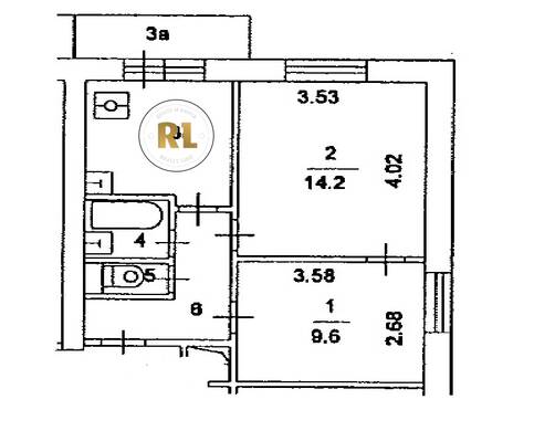
База каталог, Кол-во нежилых помещений: 0, II-18, Москва, Алексеевский, Пассажирский лифт: 2, От метро: 1270, Северо-Восточный, да, Наименьшее кол-во этажей: 12, Наибольшее кол-во этажей: 12, ВДНХ, Кол-во помещений: 84, Кол-во подъездов: 1, 2-комн, Год ввода в эксплуатацию: 1966, Кол-во жилых помещений: 84, Не присвоен, дом 14, корпус 2, нет, да, да, да, да, нет, Имеется, Грузовых лифтов: 0, Год постройки: 1966, улица Константинова, 37.657251, 55.816601
Свяжитесь со мной на счет цены
10 дн.
D55S816601L37S657251D

На карте


Условия сделки

Источник


Старт продаж

Возможно заинтересует