Top.Mail.Ru

улица Приорова, д. 3

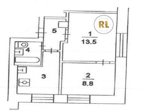
База каталог, Кол-во подъездов: 4, II-29-04/Ю37, Москва, Коптево, Пассажирский лифт: 4, От метро: 1990, Северный, да, Наименьшее кол-во этажей: 9, Наибольшее кол-во этажей: 9, Сокол, Кол-во помещений: 144, Кол-во нежилых помещений: 0, Год ввода в эксплуатацию: 1965, 2-комн, Кол-во жилых помещений: 144, А, дом 3, нет, да, да, да, нет, нет, Грузовых лифтов: 0, Год постройки: 1965, улица Приорова, 37.530157, 55.817208
Свяжитесь со мной на счет цены
10 дн.
D55S817208L37S530157D

На карте


Условия сделки

Источник


Старт продаж

Возможно заинтересует