Top.Mail.Ru

Байкальская ул., д. 27

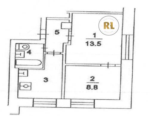
База каталог, Кол-во подъездов: 8, II-29-04/Ю37, Москва, Гольяново, Площадь парковки: 0, Пассажирский лифт: 8, От метро: 1130, Восточный, нет, Наименьшее кол-во этажей: 0, Наибольшее кол-во этажей: 9, Щёлковская, Кол-во помещений: 289, Кол-во нежилых помещений: 1, Год ввода в эксплуатацию: 1966, 2-комн, Кол-во жилых помещений: 288, дом 27, нет, да, да, да, да, нет, Имеется, Грузовых лифтов: 0, Год постройки: 1966, Байкальская улица, 37.805042, 55.817491
Свяжитесь со мной на счет цены
10 дн.
D55S817491L37S805042D

На карте


Условия сделки

Источник


Старт продаж

Возможно заинтересует