Top.Mail.Ru

Миллионная ул., д. 13, к. 1

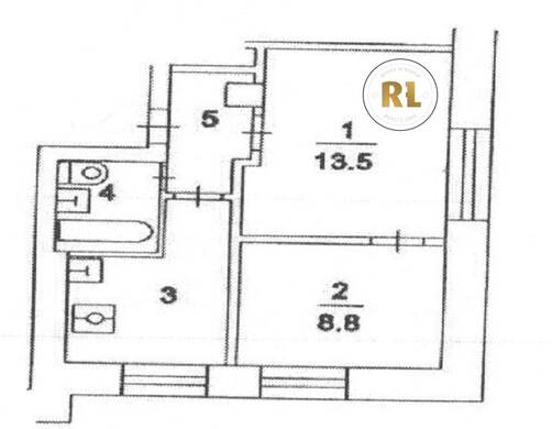
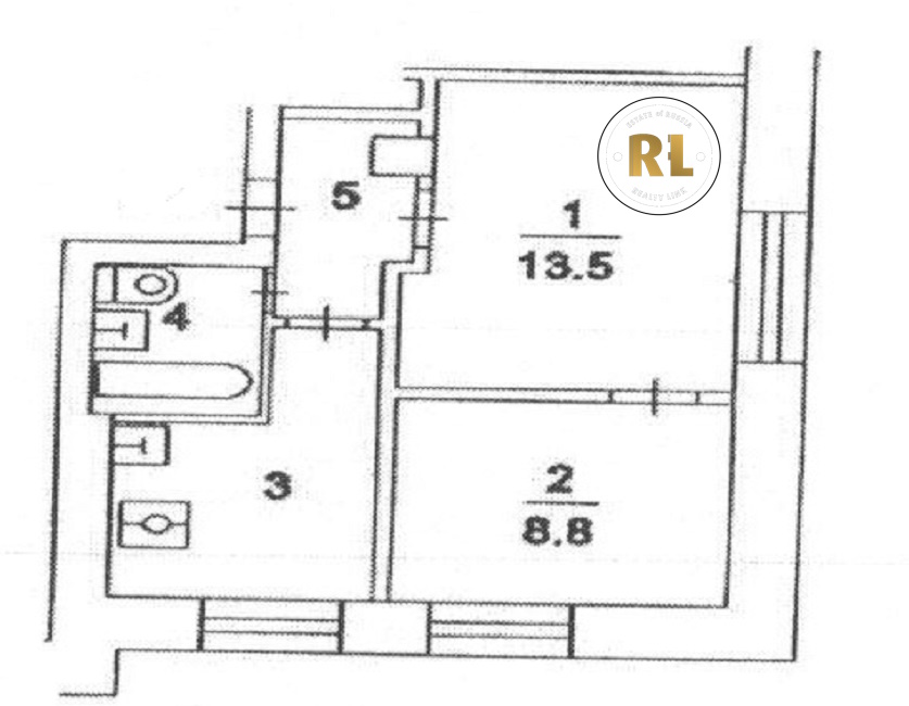
База каталог, Кол-во подъездов: 1, II-29, Москва, Богородское, Площадь парковки: 0, Пассажирский лифт: 2, От метро: 1580, Восточный, нет, Наименьшее кол-во этажей: 0, Наибольшее кол-во этажей: 9, Белокаменная, Кол-во помещений: 178, Кол-во нежилых помещений: 0, Год ввода в эксплуатацию: 1971, 2-комн, Кол-во жилых помещений: 178, В, дом 13, корпус 1, нет, да, да, да, да, нет, Имеется, Грузовых лифтов: 0, Год постройки: 1971, Миллионная улица, 37.699283, 55.817765
Свяжитесь со мной на счет цены
10 дн.
D55S817765L37S699283D

На карте


Условия сделки

Источник


Старт продаж

Возможно заинтересует