Top.Mail.Ru

Байкальская ул., д. 31

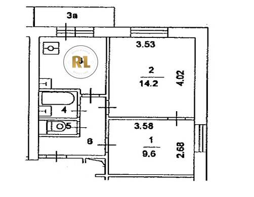
База каталог, Кол-во помещений: 81, II-18/22, Москва, Гольяново, Площадь парковки: 0, Пассажирский лифт: 2, От метро: 1320, Восточный, нет, Наименьшее кол-во этажей: 0, Наибольшее кол-во этажей: 12, Щёлковская, Кол-во подъездов: 1, Год ввода в эксплуатацию: 1968, Кол-во нежилых помещений: 1, 2-комн, Кол-во жилых помещений: 80, дом 31, нет, да, да, да, да, нет, Грузовых лифтов: 0, Год постройки: 1968, Байкальская улица, 37.808321, 55.817780
Свяжитесь со мной на счет цены
10 дн.
D55S817780L37S808321D

На карте


Условия сделки

Источник


Старт продаж

Возможно заинтересует