Top.Mail.Ru

Уральская ул., д. 12/21

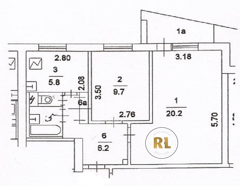
База каталог, Кол-во подъездов: 6, I-515, Москва, Гольяново, Площадь парковки: 0, Пассажирский лифт: 6, От метро: 930, Восточный, нет, Наименьшее кол-во этажей: 0, Наибольшее кол-во этажей: 9, Щёлковская, Кол-во помещений: 209, Кол-во нежилых помещений: 1, Год ввода в эксплуатацию: 1968, 2-комн, Кол-во жилых помещений: 208, дом 12/21, нет, да, да, да, да, да, Имеется, Грузовых лифтов: 0, Год постройки: 1968, Уральская улица, 37.799149, 55.818154
9 200 000 Р
10 дн.
D55S818154L37S799149D
+

На карте


Условия сделки

Источник


Старт продаж