Top.Mail.Ru

Миллионная ул., д. 13, к. 2

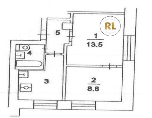
База каталог, Кол-во подъездов: 3, Отсутствует, II-29, Москва, Богородское, Площадь парковки: 0, Пассажирский лифт: 3, От метро: 1560, Восточный, нет, Наименьшее кол-во этажей: 9, Наибольшее кол-во этажей: 9, Белокаменная, Кол-во помещений: 108, Кол-во нежилых помещений: 0, Год ввода в эксплуатацию: 1972, 2-комн, Кол-во жилых помещений: 108, Не присвоен, дом 13, корпус 2, нет, да, да, да, да, нет, Отсутствует, Грузовых лифтов: 0, Год постройки: 1972, Миллионная улица, 37.698771, 55.818270
Свяжитесь со мной на счет цены
10 дн.
D55S818270L37S698771D

На карте


Условия сделки

Источник


Старт продаж

Возможно заинтересует