Top.Mail.Ru

Алтайская ул., д. 32

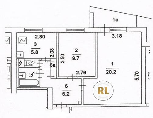
База каталог, Кол-во подъездов: 8, I-515, Москва, Гольяново, Пассажирский лифт: 8, От метро: 2670, Восточный, да, Наименьшее кол-во этажей: 0, Наибольшее кол-во этажей: 9, Щёлковская, Кол-во помещений: 289, Кол-во нежилых помещений: 1, Год ввода в эксплуатацию: 1979, 2-комн, Кол-во жилых помещений: 288, дом 32, нет, да, нет, нет, нет, нет, Имеется, Грузовых лифтов: 0, Год постройки: 1979, Алтайская улица, 37.830617, 55.818806
Свяжитесь со мной на счет цены
10 дн.
D55S818806L37S830617D

На карте


Условия сделки

Источник


Старт продаж

Возможно заинтересует