Top.Mail.Ru

3-я Радиаторская ул., д. 11

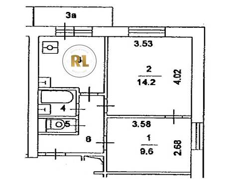
База каталог, Кол-во помещений: 0, II-18-01-МН, Москва, Войковский, Площадь парковки: 0, Пассажирский лифт: 2, От метро: 470, Северный, нет, Наименьшее кол-во этажей: 12, Наибольшее кол-во этажей: 12, Войковская, Кол-во подъездов: 1, Год ввода в эксплуатацию: 1970, Кол-во нежилых помещений: 0, 2-комн, Кол-во жилых помещений: 0, дом 11, да, да, да, да, да, да, Грузовых лифтов: 0, Год постройки: 1970, 3-я Радиаторская улица, 37.490254, 55.819095
Свяжитесь со мной на счет цены
10 дн.
D55S819095L37S490254D

На карте


Условия сделки

Источник


Старт продаж

Возможно заинтересует