Top.Mail.Ru

Алтайская ул., д. 6

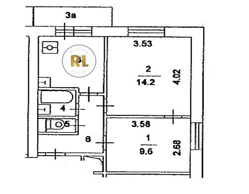
База каталог, Кол-во подъездов: 1, II-18/22, Москва, Гольяново, Площадь парковки: 0, Пассажирский лифт: 2, От метро: 1330, Восточный, нет, Наименьшее кол-во этажей: 0, Наибольшее кол-во этажей: 12, Щёлковская, Кол-во помещений: 84, Кол-во нежилых помещений: 0, Год ввода в эксплуатацию: 1967, 2-комн, Кол-во жилых помещений: 84, D, дом 6, нет, да, да, да, да, нет, Имеется, Грузовых лифтов: 0, Год постройки: 1967, Алтайская улица, 37.805500, 55.819429
Свяжитесь со мной на счет цены
10 дн.
D55S819429L37S805500D

На карте


Условия сделки

Источник


Старт продаж

Возможно заинтересует