Top.Mail.Ru

Открытое шоссе, д. 24, к. 2

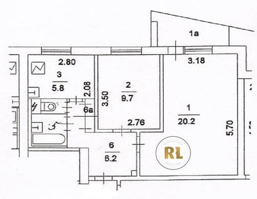
База каталог, Кол-во подъездов: 6, Имеется, I-515, Москва, Метрогородок, Площадь парковки: 0, Пассажирский лифт: 6, От метро: 1440, Восточный, нет, Наименьшее кол-во этажей: 9, Наибольшее кол-во этажей: 9, Бульвар Рокоссовского, Кол-во помещений: 215, Кол-во нежилых помещений: 0, Год ввода в эксплуатацию: 1972, 2-комн, Кол-во жилых помещений: 215, D, дом 24, корпус 2, нет, да, да, да, да, нет, Имеется, Грузовых лифтов: 0, Год постройки: 1972, Открытое шоссе, 37.752634, 55.819722
Свяжитесь со мной на счет цены
10 дн.
D55S819722L37S752634D

На карте


Условия сделки

Источник


Старт продаж

Возможно заинтересует