Top.Mail.Ru

Алтайская ул., д. 24

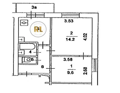
База каталог, Кол-во помещений: 84, II-18, Москва, Гольяново, Площадь парковки: 0, Пассажирский лифт: 2, От метро: 2150, Восточный, нет, Наименьшее кол-во этажей: 0, Наибольшее кол-во этажей: 12, Щёлковская, Кол-во подъездов: 1, Год ввода в эксплуатацию: 1968, Кол-во нежилых помещений: 0, 2-комн, Кол-во жилых помещений: 84, дом 24, нет, да, да, нет, нет, нет, Грузовых лифтов: 0, Год постройки: 1968, Алтайская улица, 37.819909, 55.819803
Свяжитесь со мной на счет цены
10 дн.
D55S819803L37S819909D

На карте


Условия сделки

Источник


Старт продаж

Возможно заинтересует