Top.Mail.Ru

Уральская ул., д. 15

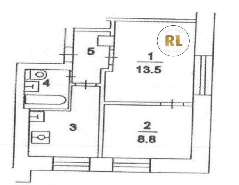
База каталог, Кол-во помещений: 283, II-29-41/37, Москва, Гольяново, Площадь парковки: 0, Пассажирский лифт: 8, От метро: 1240, Восточный, нет, Наименьшее кол-во этажей: 0, Наибольшее кол-во этажей: 9, Щёлковская, Кол-во подъездов: 8, Год ввода в эксплуатацию: 1967, Кол-во нежилых помещений: 1, 2-комн, Кол-во жилых помещений: 282, дом 15, нет, да, да, да, да, нет, Грузовых лифтов: 0, Год постройки: 1967, Уральская улица, 37.795115, 55.819939
Свяжитесь со мной на счет цены
10 дн.
D55S819939L37S795115D

На карте


Условия сделки

Источник


Старт продаж

Возможно заинтересует