Top.Mail.Ru

Черницынский проезд, д. 12

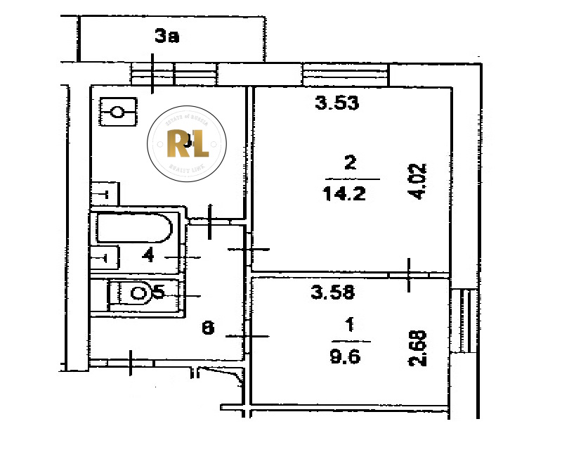
База каталог, Кол-во помещений: 84, II-18/22, Москва, Гольяново, Площадь парковки: 0, Пассажирский лифт: 2, От метро: 1860, Восточный, нет, Наименьшее кол-во этажей: 0, Наибольшее кол-во этажей: 12, Щёлковская, Кол-во подъездов: 1, Год ввода в эксплуатацию: 1970, Кол-во нежилых помещений: 0, 2-комн, Кол-во жилых помещений: 84, дом 12, нет, да, да, да, нет, нет, Грузовых лифтов: 0, Год постройки: 1970, Черницынский проезд, 37.787174, 55.821244
Свяжитесь со мной на счет цены
10 дн.
D55S821244L37S787174D

На карте


Условия сделки

Источник


Старт продаж

Возможно заинтересует