Top.Mail.Ru

Тимирязевская ул., д. 34, к. 2

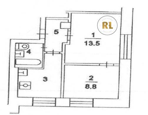
База каталог, Кол-во подъездов: 3, II-29, Москва, Тимирязевский, Площадь парковки: 0, Пассажирский лифт: 3, От метро: 1170, Северный, нет, Наименьшее кол-во этажей: 9, Наибольшее кол-во этажей: 9, Тимирязевская, Кол-во помещений: 108, Кол-во нежилых помещений: 0, Год ввода в эксплуатацию: 1964, 2-комн, Кол-во жилых помещений: 108, E, дом 34, корпус 2, нет, да, да, да, да, нет, Грузовых лифтов: 0, Год постройки: 1964, Тимирязевская улица, 37.560646, 55.822195
Свяжитесь со мной на счет цены
10 дн.
D55S822195L37S560646D

На карте


Условия сделки

Источник


Старт продаж

Возможно заинтересует