Top.Mail.Ru

Иркутская ул., д. 16

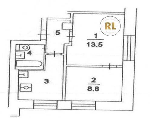
База каталог, Кол-во подъездов: 3, II-29, Москва, Гольяново, Площадь парковки: 0, Пассажирский лифт: 3, От метро: 2040, Восточный, нет, Наименьшее кол-во этажей: 0, Наибольшее кол-во этажей: 9, Щёлковская, Кол-во помещений: 109, Кол-во нежилых помещений: 1, Год ввода в эксплуатацию: 1974, 2-комн, Кол-во жилых помещений: 108, дом 16, нет, да, да, да, нет, нет, Имеется, Грузовых лифтов: 0, Год постройки: 1974, Иркутская улица, 37.785899, 55.822367
Свяжитесь со мной на счет цены
10 дн.
D55S822367L37S785899D

На карте


Условия сделки

Источник


Старт продаж

Возможно заинтересует