Top.Mail.Ru

Уссурийская ул., д. 8

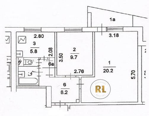
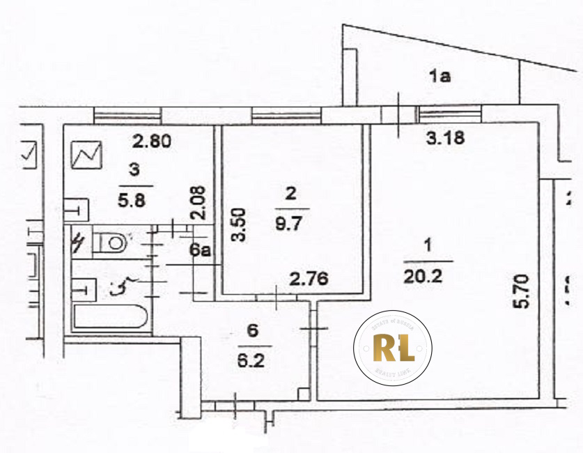
База каталог, Кол-во помещений: 145, I-515, Москва, Гольяново, Площадь парковки: 0, Пассажирский лифт: 4, От метро: 2130, Восточный, нет, Наименьшее кол-во этажей: 9, Наибольшее кол-во этажей: 9, Щёлковская, Кол-во подъездов: 4, Год ввода в эксплуатацию: 1977, Кол-во нежилых помещений: 1, 2-комн, Кол-во жилых помещений: 144, дом 8, нет, да, да, нет, нет, нет, Грузовых лифтов: 0, Год постройки: 1977, Уссурийская улица, 37.814851, 55.822382
Свяжитесь со мной на счет цены
10 дн.
D55S822382L37S814851D

На карте


Условия сделки

Источник


Старт продаж

Возможно заинтересует