Top.Mail.Ru

Уссурийская ул., д. 14

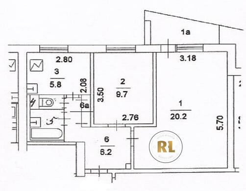
База каталог, Кол-во помещений: 288, I-515, Москва, Гольяново, Площадь парковки: 0, Пассажирский лифт: 8, От метро: 2480, Восточный, нет, Наименьшее кол-во этажей: 9, Наибольшее кол-во этажей: 9, Щёлковская, Кол-во подъездов: 8, Год ввода в эксплуатацию: 1979, Кол-во нежилых помещений: 1, 2-комн, Кол-во жилых помещений: 287, дом 14, нет, да, да, нет, нет, нет, Грузовых лифтов: 0, Год постройки: 1979, Уссурийская улица, 37.820295, 55.822852
Свяжитесь со мной на счет цены
10 дн.
D55S822852L37S820295D

На карте


Условия сделки

Источник


Старт продаж

Возможно заинтересует