Top.Mail.Ru

Уссурийская ул., д. 1, к. 3

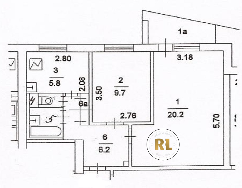
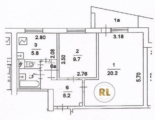
База каталог, Кол-во подъездов: 4, I-515, Москва, Гольяново, Площадь парковки: 0, Пассажирский лифт: 4, От метро: 2150, Восточный, нет, Наименьшее кол-во этажей: 0, Наибольшее кол-во этажей: 9, Щёлковская, Кол-во помещений: 145, Кол-во нежилых помещений: 1, Год ввода в эксплуатацию: 1974, 2-комн, Кол-во жилых помещений: 144, дом 1, корпус 3, нет, да, да, нет, нет, нет, Отсутствует, Грузовых лифтов: 0, Год постройки: 1974, Уссурийская улица, 37.809174, 55.824364
Свяжитесь со мной на счет цены
10 дн.
D55S824364L37S809174D

На карте


Условия сделки

Источник


Старт продаж

Возможно заинтересует