Top.Mail.Ru

Хабаровская ул., д. 20

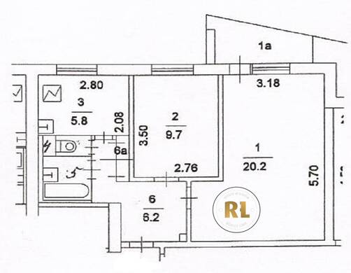
База каталог, Кол-во подъездов: 4, I-515, Москва, Гольяново, Площадь парковки: 0, Пассажирский лифт: 4, От метро: 3000, Восточный, нет, Наименьшее кол-во этажей: 0, Наибольшее кол-во этажей: 9, Щёлковская, Кол-во помещений: 144, Кол-во нежилых помещений: 0, Год ввода в эксплуатацию: 1972, 2-комн, Кол-во жилых помещений: 144, дом 20, нет, да, нет, нет, нет, нет, Имеется, Грузовых лифтов: 0, Год постройки: 1972, Хабаровская улица, 37.825416, 55.825093
Свяжитесь со мной на счет цены
10 дн.
D55S825093L37S825416D

На карте


Условия сделки

Источник


Старт продаж

Возможно заинтересует