Top.Mail.Ru

Сахалинская ул., д. 5, к. 2

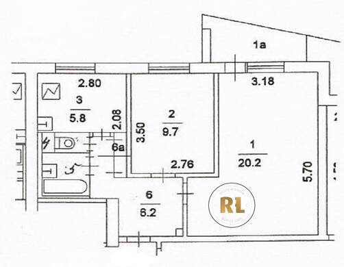
База каталог, Кол-во помещений: 217, I-515, Москва, Гольяново, Площадь парковки: 0, Пассажирский лифт: 6, От метро: 2360, Восточный, нет, Наименьшее кол-во этажей: 0, Наибольшее кол-во этажей: 9, Щёлковская, Кол-во подъездов: 6, Год ввода в эксплуатацию: 1971, Кол-во нежилых помещений: 1, 2-комн, Кол-во жилых помещений: 216, дом 5, корпус 2, нет, да, да, нет, нет, нет, Грузовых лифтов: 0, Год постройки: 1971, Сахалинская улица, 37.813540, 55.825315
Свяжитесь со мной на счет цены
10 дн.
D55S825315L37S813540D

На карте


Условия сделки

Источник


Старт продаж

Возможно заинтересует