Top.Mail.Ru

Хабаровская ул., д. 22, к. 2

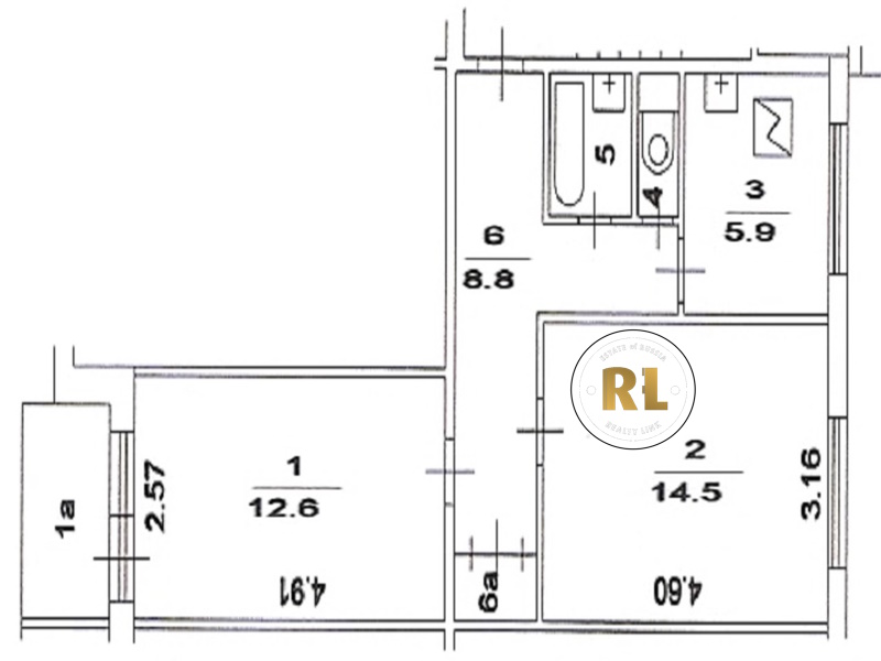
База каталог, Кол-во помещений: 143, II-49-04/Ю, Москва, Гольяново, Площадь парковки: 0, Пассажирский лифт: 4, От метро: 3100, Восточный, нет, Наименьшее кол-во этажей: 0, Наибольшее кол-во этажей: 9, Щёлковская, Кол-во подъездов: 4, Год ввода в эксплуатацию: 1973, Кол-во нежилых помещений: 1, 2-комн, Кол-во жилых помещений: 142, дом 22, корпус 2, нет, нет, нет, нет, нет, нет, Грузовых лифтов: 0, Год постройки: 1973, Хабаровская улица, 37.827068, 55.825477
Свяжитесь со мной на счет цены
10 дн.
D55S825477L37S827068D

На карте


Условия сделки

Источник


Старт продаж

Возможно заинтересует