Top.Mail.Ru

Уссурийская ул., д. 1, к. 2

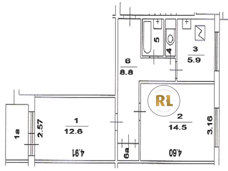
База каталог, Кол-во подъездов: 8, II-49Д, Москва, Гольяново, Площадь парковки: 0, Пассажирский лифт: 8, От метро: 2200, Восточный, нет, Наименьшее кол-во этажей: 0, Наибольшее кол-во этажей: 9, Щёлковская, Кол-во помещений: 287, Кол-во нежилых помещений: 0, Год ввода в эксплуатацию: 1970, 2-комн, Кол-во жилых помещений: 287, дом 1, корпус 2, нет, да, да, нет, нет, нет, Имеется, Грузовых лифтов: 0, Год постройки: 1970, Уссурийская улица, 37.808878, 55.825694
Свяжитесь со мной на счет цены
10 дн.
D55S825694L37S808878D

На карте


Условия сделки

Источник


Старт продаж

Возможно заинтересует