Top.Mail.Ru

Хабаровская ул., д. 21

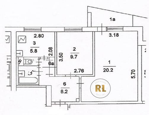
База каталог, Кол-во помещений: 213, I-515, Москва, Гольяново, Площадь парковки: 0, Пассажирский лифт: 6, От метро: 2960, Восточный, нет, Наименьшее кол-во этажей: 9, Наибольшее кол-во этажей: 9, Щёлковская, Кол-во подъездов: 6, Год ввода в эксплуатацию: 1970, Кол-во нежилых помещений: 1, 2-комн, Кол-во жилых помещений: 212, дом 21, нет, да, нет, нет, нет, нет, Грузовых лифтов: 0, Год постройки: 1970, Хабаровская улица, 37.823188, 55.825790
Свяжитесь со мной на счет цены
10 дн.
D55S825790L37S823188D

На карте


Условия сделки

Источник


Старт продаж

Возможно заинтересует