Top.Mail.Ru

Хабаровская ул., д. 22, к. 3

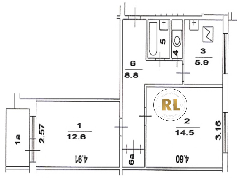
База каталог, Кол-во подъездов: 4, II-49Д, Москва, Гольяново, Площадь парковки: 0, Пассажирский лифт: 4, От метро: 3200, Восточный, нет, Наименьшее кол-во этажей: 0, Наибольшее кол-во этажей: 9, Щёлковская, Кол-во помещений: 144, Кол-во нежилых помещений: 1, Год ввода в эксплуатацию: 1973, 2-комн, Кол-во жилых помещений: 143, дом 22, корпус 3, нет, нет, нет, нет, нет, нет, Имеется, Грузовых лифтов: 0, Год постройки: 1973, Хабаровская улица, 37.827077, 55.826068
Свяжитесь со мной на счет цены
10 дн.
D55S826068L37S827077D

На карте


Условия сделки

Источник


Старт продаж

Возможно заинтересует