Top.Mail.Ru

Новопетровская ул., д. 16А

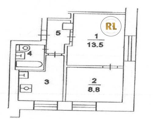
База каталог, Кол-во подъездов: 9, II-29, Москва, Коптево, Площадь парковки: 0, Пассажирский лифт: 9, От метро: 1850, Северный, нет, Наименьшее кол-во этажей: 9, Наибольшее кол-во этажей: 9, Коптево, Кол-во помещений: 310, Кол-во нежилых помещений: 0, Год ввода в эксплуатацию: 1969, 2-комн, Кол-во жилых помещений: 310, А, дом 16А, нет, да, да, да, нет, нет, Грузовых лифтов: 0, Год постройки: 1969, Новопетровская улица, 37.523267, 55.826463
12 500 000 Р
10 дн.
D55S826463L37S523267D
+

На карте


Условия сделки

Источник