Top.Mail.Ru

Сахалинская ул., д. 7, к. 2

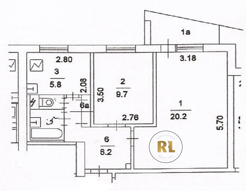
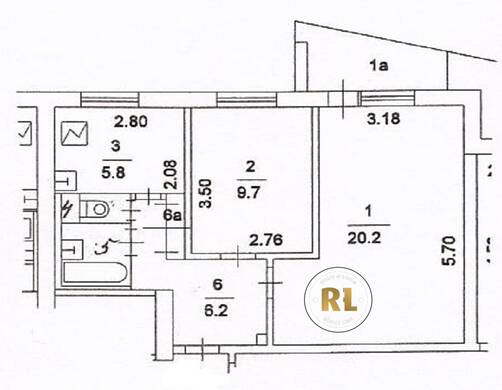
База каталог, Кол-во подъездов: 6, I-515, Москва, Гольяново, Площадь парковки: 0, Пассажирский лифт: 6, От метро: 2510, Восточный, нет, Наименьшее кол-во этажей: 0, Наибольшее кол-во этажей: 9, Щёлковская, Кол-во помещений: 216, Кол-во нежилых помещений: 0, Год ввода в эксплуатацию: 1971, 2-комн, Кол-во жилых помещений: 216, дом 7, корпус 2, нет, да, да, нет, нет, нет, Имеется, Грузовых лифтов: 0, Год постройки: 1971, Сахалинская улица, 37.813450, 55.826731
Свяжитесь со мной на счет цены
10 дн.
D55S826731L37S813450D

На карте


Условия сделки

Источник


Старт продаж

Возможно заинтересует