Top.Mail.Ru

Сахалинская ул., д. 11

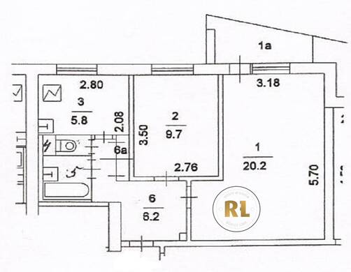
База каталог, Кол-во подъездов: 6, I-515, Москва, Гольяново, Площадь парковки: 0, Пассажирский лифт: 6, От метро: 2730, Восточный, нет, Наименьшее кол-во этажей: 0, Наибольшее кол-во этажей: 9, Щёлковская, Кол-во помещений: 215, Кол-во нежилых помещений: 0, Год ввода в эксплуатацию: 1970, 2-комн, Кол-во жилых помещений: 215, дом 11, нет, да, нет, нет, нет, нет, Имеется, Грузовых лифтов: 0, Год постройки: 1970, Сахалинская улица, 37.815274, 55.827328
Свяжитесь со мной на счет цены
10 дн.
D55S827328L37S815274D

На карте


Условия сделки

Источник


Старт продаж

Возможно заинтересует