Top.Mail.Ru

Хабаровская ул., д. 25

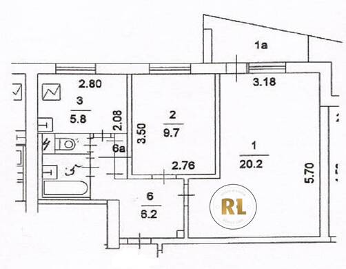
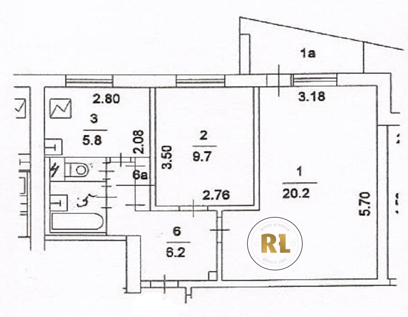
База каталог, Кол-во помещений: 215, I-515, Москва, Гольяново, Площадь парковки: 0, Пассажирский лифт: 6, От метро: 3100, Восточный, нет, Наименьшее кол-во этажей: 9, Наибольшее кол-во этажей: 9, Щёлковская, Кол-во подъездов: 6, Год ввода в эксплуатацию: 1971, Кол-во нежилых помещений: 0, 2-комн, Кол-во жилых помещений: 215, дом 25, нет, нет, нет, нет, нет, нет, Грузовых лифтов: 0, Год постройки: 1971, Хабаровская улица, 37.823035, 55.827499
Свяжитесь со мной на счет цены
10 дн.
D55S827499L37S823035D

На карте


Условия сделки

Источник


Старт продаж

Возможно заинтересует