Top.Mail.Ru

Камчатская ул., д. 6, к. 2

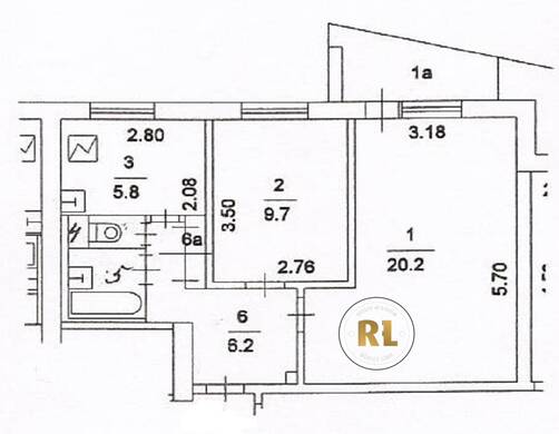
База каталог, Кол-во помещений: 142, I-515, Москва, Гольяново, Площадь парковки: 0, Пассажирский лифт: 4, От метро: 2560, Восточный, нет, Наименьшее кол-во этажей: 0, Наибольшее кол-во этажей: 9, Щёлковская, Кол-во подъездов: 4, Год ввода в эксплуатацию: 1972, Кол-во нежилых помещений: 1, 2-комн, Кол-во жилых помещений: 141, дом 6, корпус 2, нет, да, да, нет, нет, нет, Грузовых лифтов: 0, Год постройки: 1972, Камчатская улица, 37.812462, 55.827944
Свяжитесь со мной на счет цены
10 дн.
D55S827944L37S812462D

На карте


Условия сделки

Источник


Старт продаж

Возможно заинтересует