Top.Mail.Ru

Малахитовая ул., д. 12, к. 2

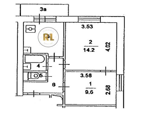
База каталог, Кол-во подъездов: 1, II-18-01-МН, Москва, Ростокино, Площадь парковки: 137, Пассажирский лифт: 2, От метро: 1470, Северо-Восточный, да, Наименьшее кол-во этажей: 12, Наибольшее кол-во этажей: 12, Ростокино, Кол-во помещений: 84, Кол-во нежилых помещений: 0, Год ввода в эксплуатацию: 1964, 2-комн, Кол-во жилых помещений: 84, E, дом 12, корпус 2, нет, да, да, да, да, нет, Грузовых лифтов: 0, Год постройки: 1964, Малахитовая улица, 37.664698, 55.829183
Свяжитесь со мной на счет цены
10 дн.
D55S829183L37S664698D

На карте


Условия сделки

Источник


Старт продаж

Возможно заинтересует